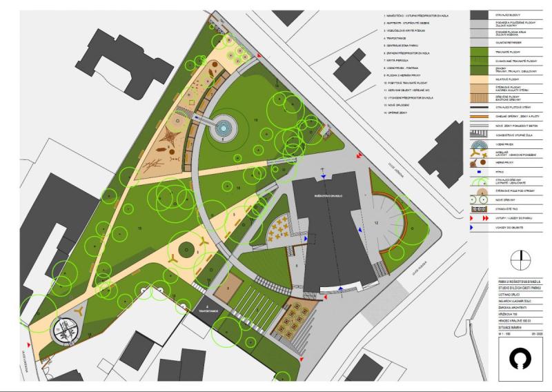
Cílem je realizovat dlouholetou vizi města, která byla v uplynulých třiceti letech již vícekrát architektonicky řešena, ale dosud zůstávala nenaplněna. Park u divadla se s ohledem na nový park u kostela může stát součástí atraktivní městské trasy s významnými památkami a vysokou pobytovou hodnotou. Požadavkem města na architektonické řešení bylo zachování průchodu parkem mezi ulicemi Ježkova, Husova a Lukesova, propojení parku s objektem divadla a využití přirozené terénní nerovnosti pro letní kulturní aktivity.
Park se má stát místem pro setkávání, relaxaci, ale i pořádání výstav nebo posezení ve stínu vzrostlé zeleně. Strukturován bude na různé plochy: pobytové, určené k posezení, ke hrám či cvičení. Doplněny budou různými prvky, například víceúčelovým pódiem se zelenou střechou, krytou pergolou nebo vodním prvkem. Myslelo se i na rodiny s dětmi, které v parku najdou herní prvky pro různé věkové kategorie. Nová koncepce pracuje s myšlenkou obnovit provoz kavárny pod divadlem, která by byla s parkem propojena venkovní terasou.
Vstup z Lukesovy ulice je v současné době nevyhovující a nástup do parku z této strany je sevřený a prakticky neexistuje. Protože je objekt bývalého DDM již deset let opuštěný a bez dalšího využití ze strany města, předpokládá architektonický návrh jeho demolici.
Rada města Ústí nad Orlicí schválila pokračování v projektové přípravě prostřednictvím autora návrhu Ing. arch. Vladimíra Šolce.


















